Projecten
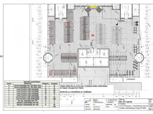
Bij metrostation Capelle Centrum is een nieuwe fietsenstalling gerealiseerd. Opdrachtgever RET, een vervoerbedrijf dat actief is in het stadsvervoer in en om Rotterdam, heeft als missie om “de reiziger, die onderweg is, een aangenamere reis aan te bieden”. De fietsenstalling, met 350 bewaakte plekken voor fietsen, heeft een hoge gevel van glas en een verlichte hal met zicht op straat. Voor de inrichting van de fietsparkeergarage werd Falco, specialist in fietsparkeren, ingeschakeld.
Maximaal gebruik van de ruimte
Vooraf werd door de Ontwerpafdeling van Falco een tekening cq presentatie gemaakt om het maximale rendement uit de parkeergarage te halen en de plaatsing in goede banen te leiden. Onze productie bevindt zich op onze hoofdvestiging in Vriezenveen, wij verzorgen uw project van begin tot eind!
Etage fietsenrekken
De meeste (standaard) fietsen in de parkeergarage in Capelle zullen in het etage fietsenrek FalcoLevel Premium+ gestald worden. Zowel enkel- als dubbelzijdig te gebruiken, biedt de Premium+ in deze stalling plaats aan 272 fietsen! De Premium+ is een gebruiksvriendelijk fietsenrek, waarin de fiets op 2 niveaus gestald kan worden. Op het bovenste niveau gaat fietsparkeren eenvoudig; de bovengoot met fiets kan, dankzij de geïmplementeerde gasdrukveer, met een vloeiende beweging moeiteloos terug geschoven worden. Ook aan de fietsen voor onderin parkeren is gedacht, hier is meer ruimte gemaakt voor de fietsen ten opzichte van het bovenste niveau. Dit voorkomt o.a. beschadiging van de fietsen.
Fietsenrek Ideaal 2.0 met FietsParKeur
60 Fietsen kunnen geparkeerd worden in het Ideaal 2.0 fietsenrek. Dit rek heeft een hart-op-hart afstand van 40 cm. Hierdoor is er voldoende parkeerruimte tussen de fietsen en wordt het risico verlaagd dat de fietsen verstrengeld raken. Op elke wielbeugel van het rek vindt u standaard een aanbindoog, hiermee kan de fiets extra beveiligd worden middels een slot. De hulzen op de wielklemmen beschermen de voorvork van de fiets tegen beschadiging.
FalcoSound fietsenrekken voor buitenmodelfietsen
Anders dan bij de standaard hoog/laag FalcoSound rekken, hebben de FalcoSound rekken in Capelle alleen lage plaatsen, met een hart op hart afstand van 60 cm. In deze rekken kunnen dan ook buitenmodel fietsen, zoals kratfietsen, moeiteloos geparkeerd kunnen worden. De bijzondere vorm van de wielbeugels van het fietsenrek FalcoSound zijn erg vriendelijk voor het voorwiel. Falco heeft overigens nog meer producten in het programma, die speciaal zijn ontwikkeld voor buitenmodel fietsen.
E-bike parkeren
Elektrisch fietsen heeft de toekomst, dus ook aan e-bikes is gedacht! In fietsenrek FalcoIon kan de e-bike eenvoudig geparkeerd en opgeladen worden! Het rek biedt plaats aan twee fietsen en heeft daarom ook twee geïntegreerde oplaadpunten.
FalcoToaster fietsaanleunbeugels
Tot slot zijn er twee FalcoToaster fietsaanleunbeugels geleverd. De FalcoToaster is een combinatie van een aanbindbeugel en een fietsenrek. Dit rek is geschikt voor buitenmodelfietsen, maar ook scooters kunnen netjes in het rek geparkeerd worden. De FalcoToaster is aan twee zijdes te gebruiken, op deze manier kan men van twee kanten de fiets of scooter parkeren.
Specialist in fietsparkeren
Falco is al meer dan 70 jaar specialist in fietsparkeren; hetzij in open ruimtes of gesloten. Met diverse fietsenstallingen en bergingsmogelijkheden met bijpassende fietsenrekken of etagesystemen helpt Falco u graag met advies over uw project. Falco biedt u door onze interne ontwerpafdeling een geweldige mogelijkheid om uw project op maat vorm te geven. Net zoals ook onze productie en montage op onze hoofdvestiging in Vriezenveen bevindt, verzorgen wij u project van begin tot eind. Neem contact op met Falco voor uw project; bel 0546 55 44 44 of e-mail verkoop@falco.nl.
Nederland wil in 2050 volledig circulair zijn en in 2030 al 50% minder primaire grondstoffen (mineralen, metalen en fossiele brandstoffen) gebruiken. Dat is een uitdaging, ook voor Falco. Sinds de oprichting werkt Falco modulair en vooruitstrevend. Maar circulair denken vraagt nog steeds om aanpassingen. Daarom heeft Falco sinds 2020 een Circulair Manager, John Wermink.
John richt zich op het zo circulair mogelijk maken van Falco-producten, waaronder:
- ontwerpen voor eenvoudige montage en demontage
- repareren, refurbishen en recyclen
- behouden van (rest)waarde van materialen en arbeid
- certificering volgens ISO 9001, ISO 14001, VCA, FSC® en de CO2-prestatieladder (KAM)
Meer weten?
Falco denkt graag mee over de inzet van circulaire producten voor een mooiere en meer verantwoorde inrichting van uw buitenruimte.


